Castellbell i el Vilar
El Casino Borràs és un edifici emblemàtic del poble que funciona com a equipament cultural municipal. Data de l’any 1900 i des de l’any 1922 ha fet la funció de teatre, acollint les agrupacions teatrals i d’altres activitats artístiques del municipi.
L’objectiu de la primera fase del projecte és la rehabilitació de l’envolupant de l’edifici del Casino Borràs, definint les directrius i aplicant les tècniques i els mètodes per restablir i recuperar l’estat original d’aquest edifici.
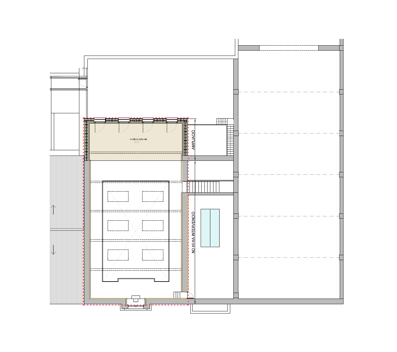
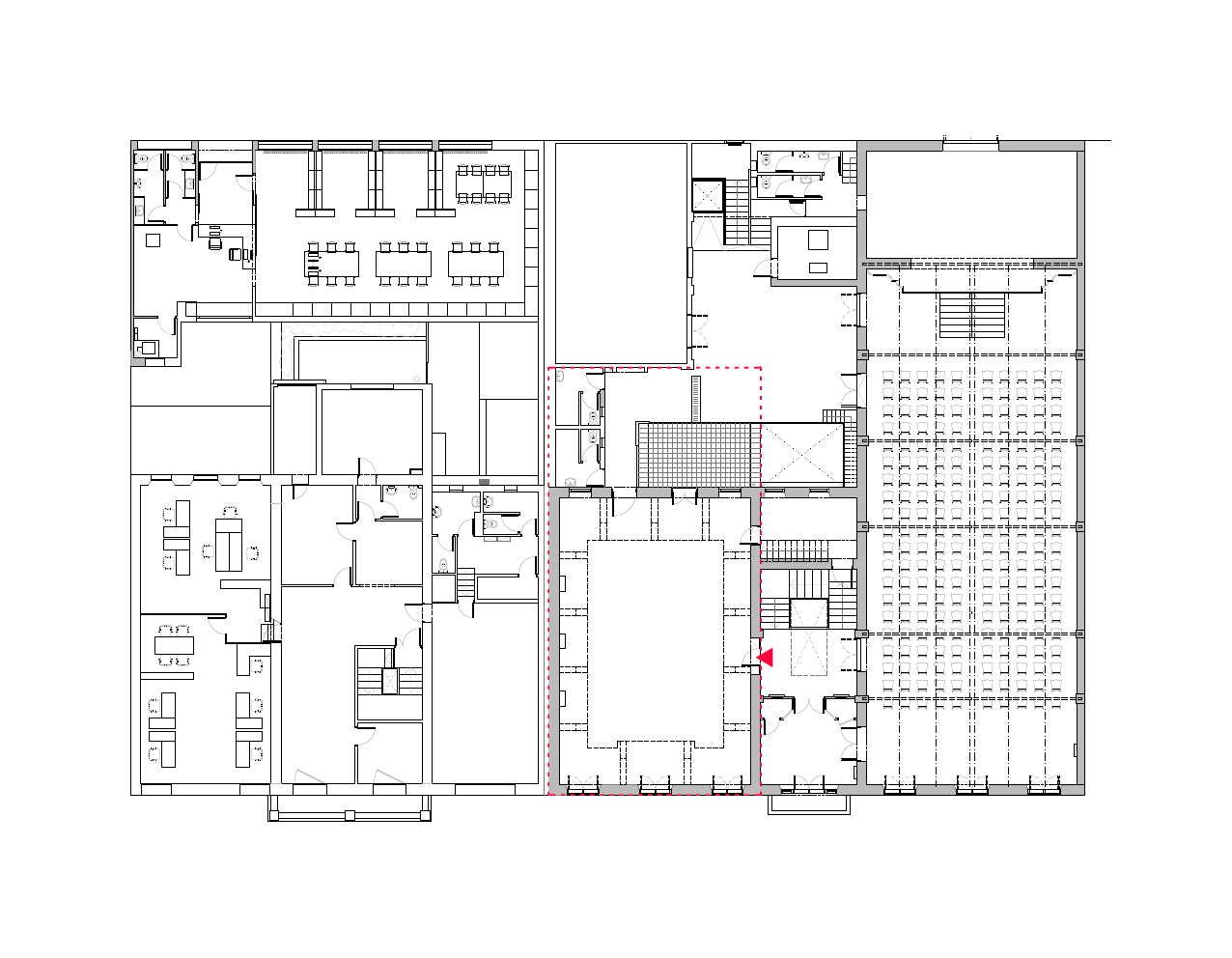
La segona fase preveu el es condicionament interior i ampliació de la sala polivalent Miquel Martí i Pol, que en un futur ha d’acollir la Biblioteca municipal de Castellbell i el Vilar.
Data del projecteMaig 2017
Data final d'obraMarç 2020
Arquitecte/sPere Santamaria
PromotorAjuntament de Castellbell i el Vilar
Superfície275 m2
PressupostFASE 1: 220.255 € / FASE 2: 277.919 €