Centre d’interptretació del bosc i del foc

Sant Llorenç Savall

Descripció del projecte

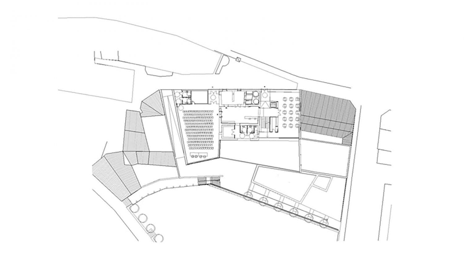
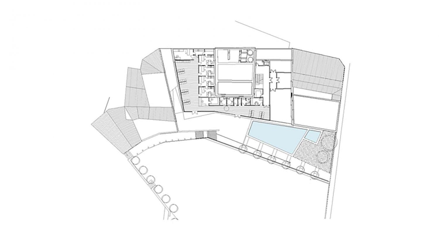
L’objecte del projecte és crear un centre dedicat a l’impacte dels incendis forestals a la Mediterrània, ubicat en una masia existent de 2 plantes d’alçada.

El Centre d’Interpretació del Bosc i del Foc integra una oficina de punt d’informació, un centre BTT dedicat al lloguer de bicilcetes, una sala per a la presentació del territori, despatxos i magatzem, serveis, una sala polivalent amb capacitat per a unes 150 persones i la sala del museu.

 

Fitxa tècnica

Data del projecteOctubre 2006

Arquitecte/sPere Santamaria

PromotorConsell Comarcal del Vallès Occidental

Superfície1.186,80 m2

Pressupost1.889.674 €

PremisEquip seleccionat