Masquefa
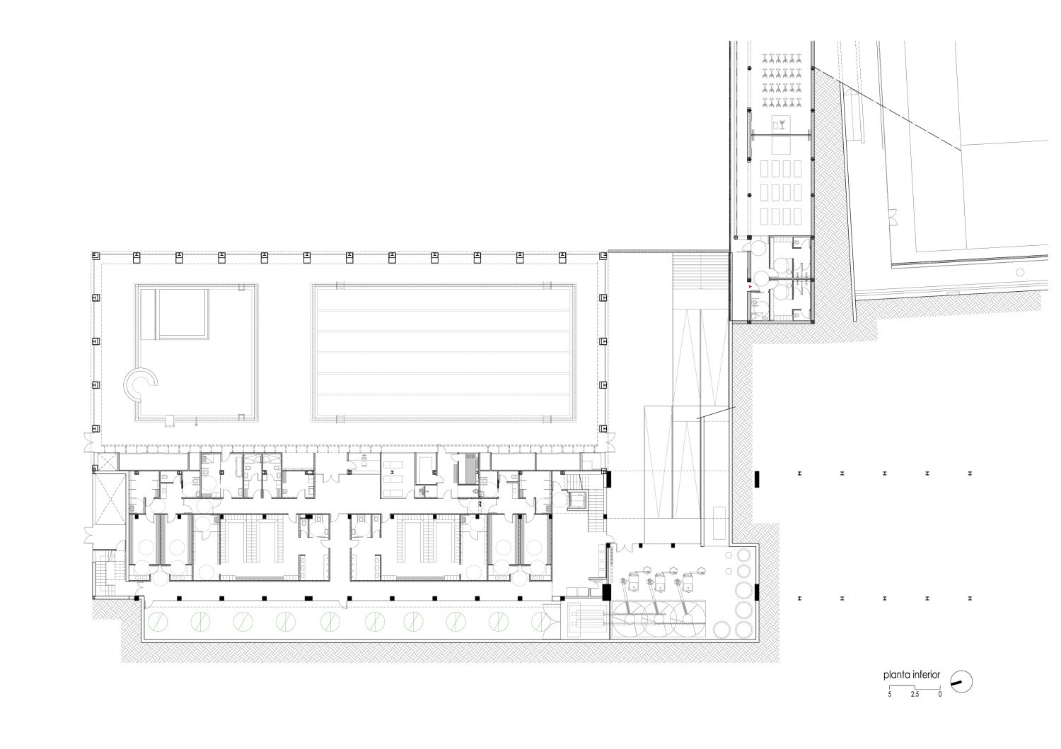
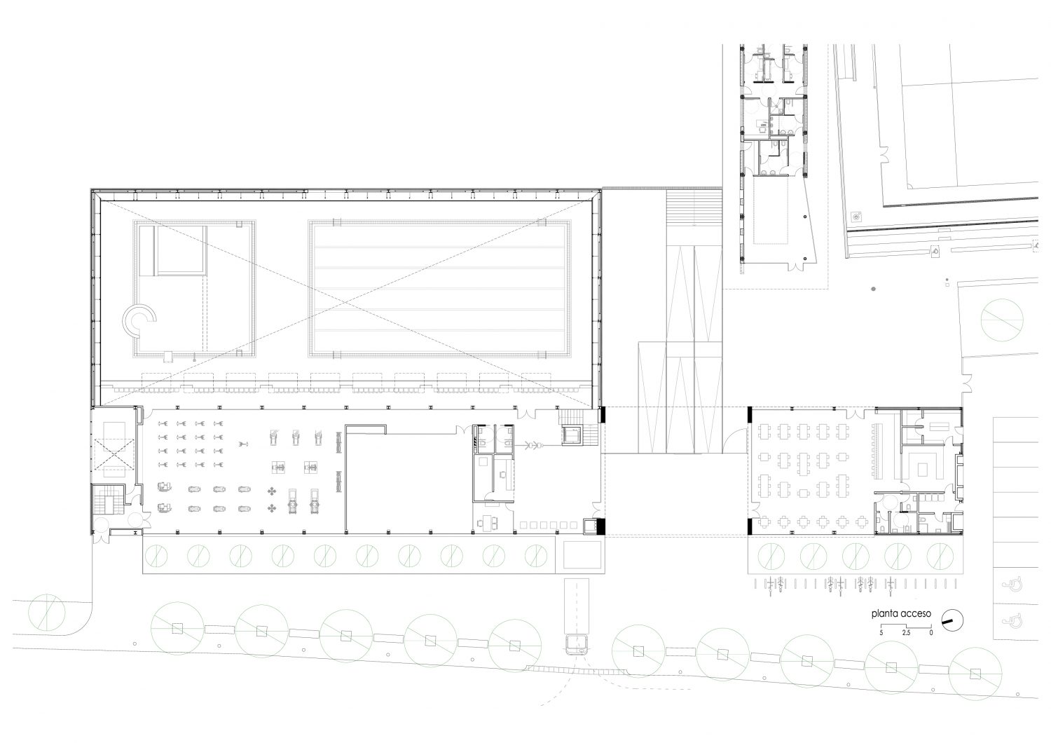
L’objecte del projecte és la construcció de dues piscines cobertes, vestidors i serveis associats, i zona de bar-restaurant.
El nou edifici és un volum rectangular, amb façana metàl·lica i coberta inclinada a una vessant, situat paral·lel al carrer.
L’accés es porta a terme a través d’un gran vestíbul exterior on se centralitzen tots els accessos als diferents àmbits de la zona esportiva.

Data del projecte2017
Data final d'obraJuny 2019
Arquitecte/sPere Santamaria
Arquitecte tècnicJordi Claramunt
Càlcul d'estructuresCarmela Torró / Oriol Palou
Càlcul d'instal·lacionsLarix
PromotorAjuntament de Masquefa
Superfície1.884'11 m2
Pressupost2.935.571 €
ConstructorConstructora del Cardoner
FotografiaTanit Plana
PremisProjecte finalista premi "Piscina & Wellness Barcelona 2019"