IES tipus D4

Retamar. Almería

Descripció del projecte

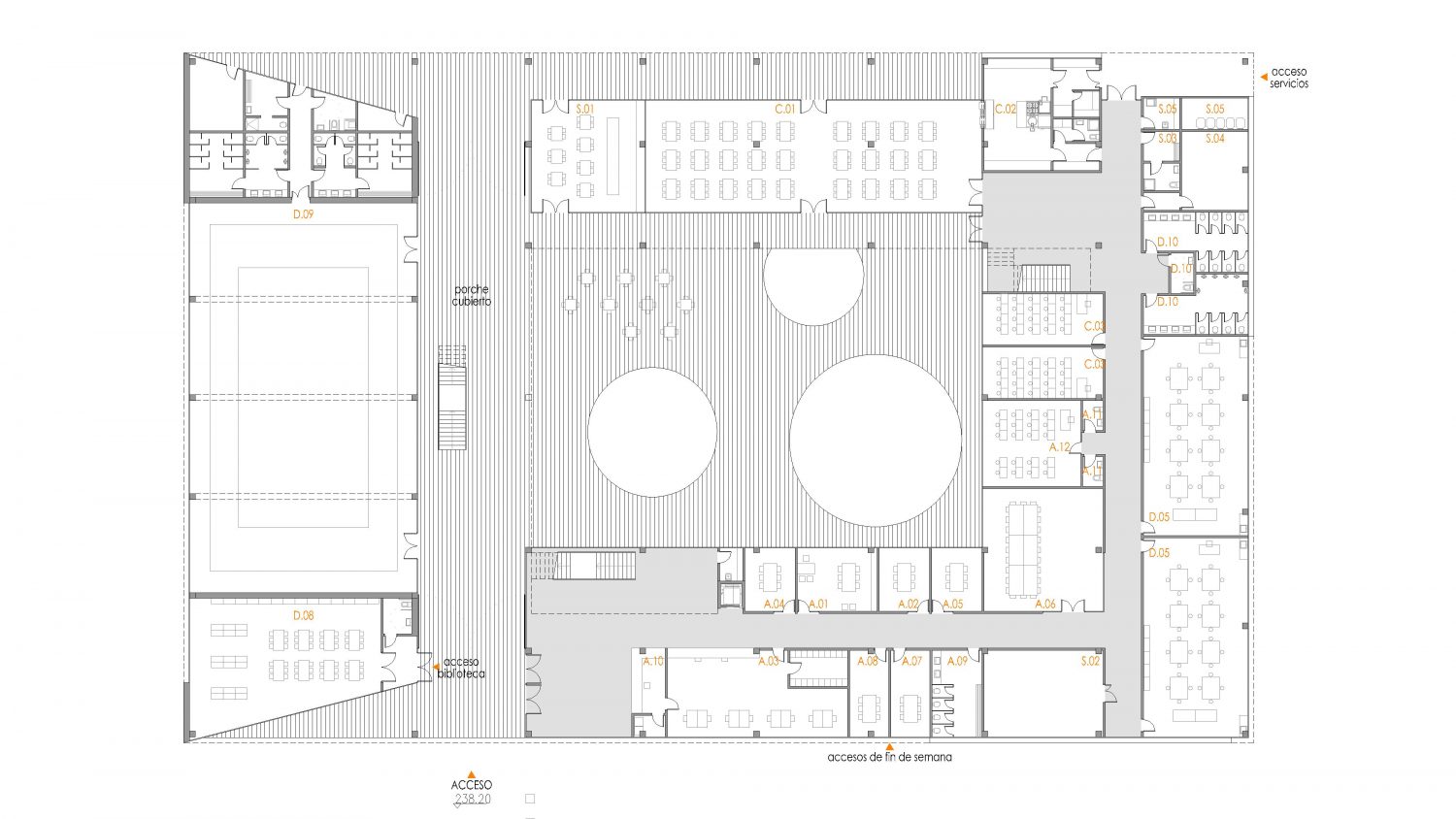
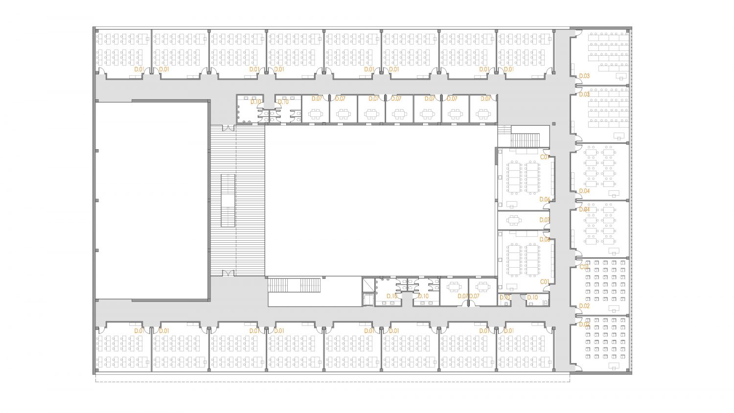
La solució adoptada és un volum rectangular compacte de planta baixa i planta pis amb un gran pati central al voltant del qual es generen les circulacions.

La forma compacta permet optimitzar circulacions i minimitzar costos i redueix al màxim la seva petja en el terreny, deixant espai lliure per patis i pistes esportives. El gimnàs queda integrat dins el mateix volum, a doble alçada ocupant la primera planta però mantenint l’accés directe des de les pistes exteriors.

El protagonista del projecte és el gran pati interior central, un espai polivalent a l’aire lliure que assumeix les funcions de pati de llums, espai de relacions visuals entre totes les zones de l’edifici, i punt de reunió per activitats a l’aire lliure.

Fitxa tècnica

Data del projecteJuliol 2012

Arquitecte/sPere Santamaria

Tipus de concursConcurs obert

PromotorISE | Junta de Andalucía

Superfície4.450 m2