Nou ajuntament

Castellví de la Marca

Descripció del projecte

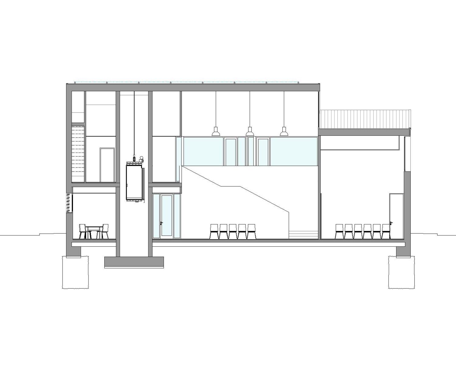
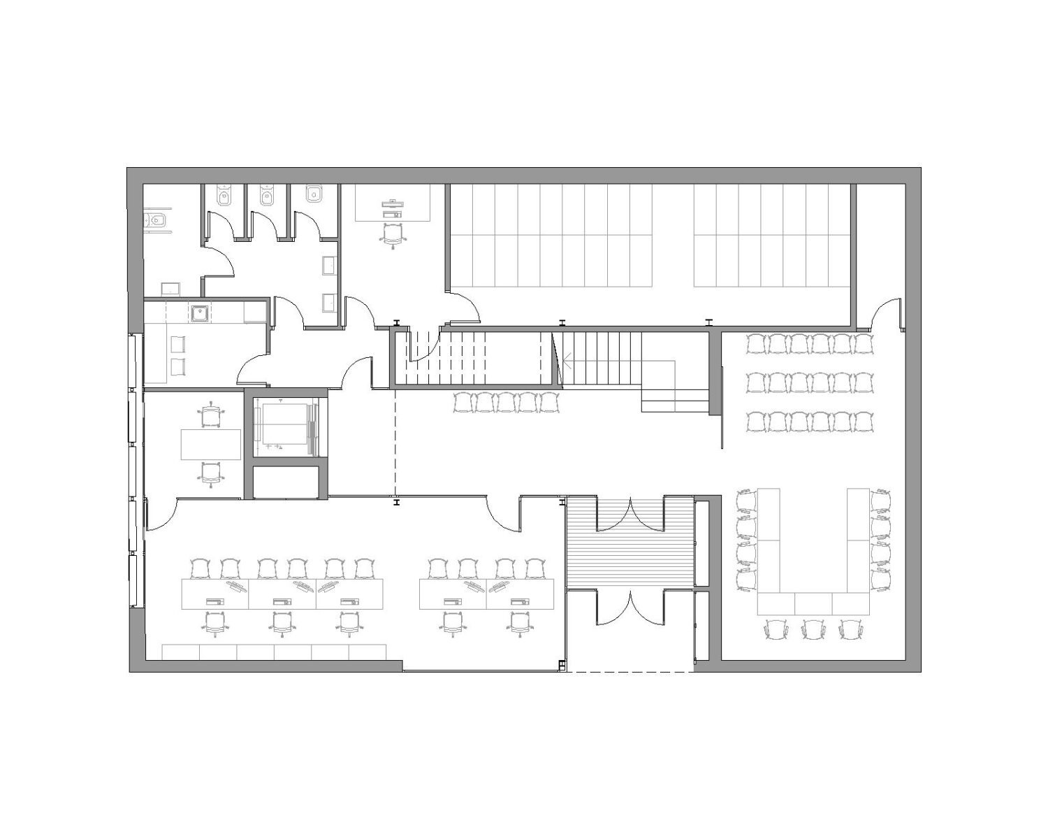
Es proposa un edifici compacte format per un volum de planta rectangular de 21 x 13’5 m i dues plantes d’alçada.

L’edifici presenta un espai central tipus pati, que actua com a element de relació entre totes les àrees de l’Ajuntament. En aquest espai és on es disposa l’escala de comunicació entre les dues plantes.

L’edifici es resol amb coberta inclinada a una pendent, fent que l’edifici s’obri cap a la plaça, corresponent amb l’orientació nord-est, que resulta la façana principal de l’Ajuntament. Aquesta coberta presenta un buidat en una de les cantonades de la façana que s’obre a la plaça, per tal de donar llum al pati central.

PUBLICACIONS DIGITALS

  Veure article

  Veure article

Veure article

 

Veure article

Veure article

Fitxa tècnica

Data del projecteMarç 2020

Data final d'obraAbril 2023

Arquitecte/sPere Santamaria

Arquitecte tècnicJordi Claramunt

Càlcul d'estructuresJordi Payola Arquitectura i Enginyeria

Càlcul d'instal·lacionsSanti Marés

PromotorDiputació de Barcelona / Ajuntament de Castellví de la Marca

Superfície502,55 m2

PressupostFASE 1: 416.319 € / FASE 2: 419.604 €

ConstructorFugencio Villar S.L.

FotografiaJudith Casas

PremisObra nominada "Obra del Año 2025" Archdaily