Valls
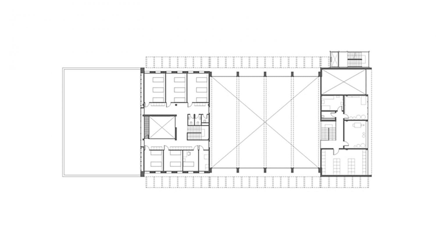
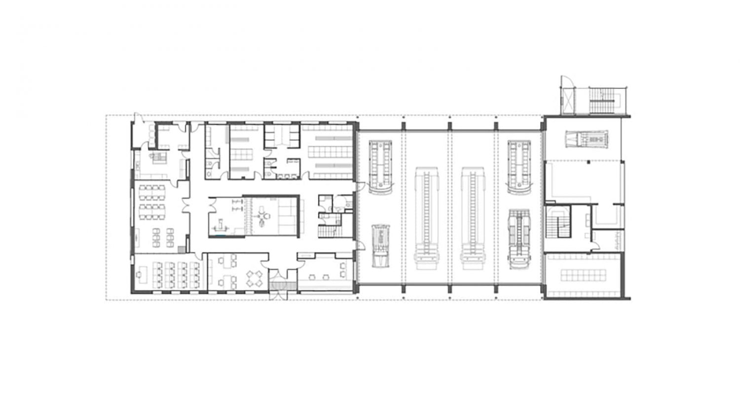
Es crea un volum rectangular compacte alineat al carrer, dissenyat com un objecte aïllat enmig del polígon industrial on s’ubica. La meitat del volum està ocupat per les cotxeres i serveis associats, amb heliport a la coberta, i a l’altra meitat s’hi situen les dependències pels bombers.
PUBLICACIONS
AMBIENTE Y CLIMA – Veure article
Data del projecteGener 2007
Data final d'obraSetembre 2011
Arquitecte/sPere Santamaria
Arquitecte tècnicMBF Serveis d'Arquitectura i Gestió
Càlcul d'estructuresManuel Arguijo y Associados S.L.
Càlcul d'instal·lacionsJSS arquitectura i enginyeria SLP
PromotorGestió d'Infraestructures S.A. (GISA) / Departament d'Interior de la Generalitat de Catalunya
Superfície1.240 m2
Pressupost2.939.065 €
ConstructorCJAM
FotografiaFrancesc Rubí
Premis1er premi concurs restringit