Rehabilitació d’edifici plurifamiliar entre mitgeres

Cardona

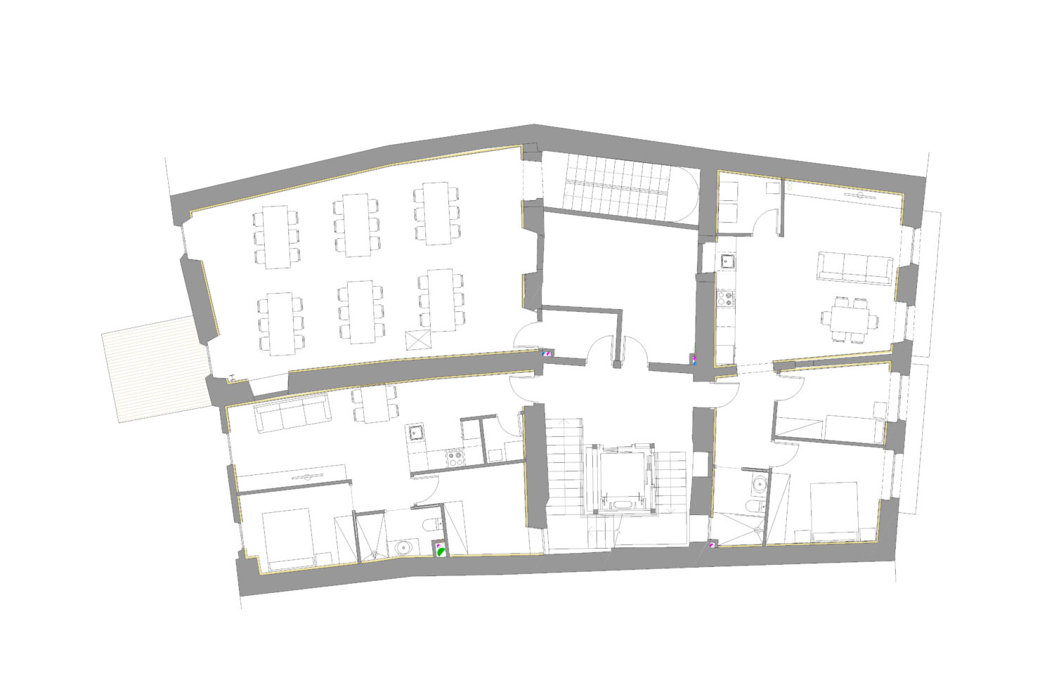
Descripció del projecte

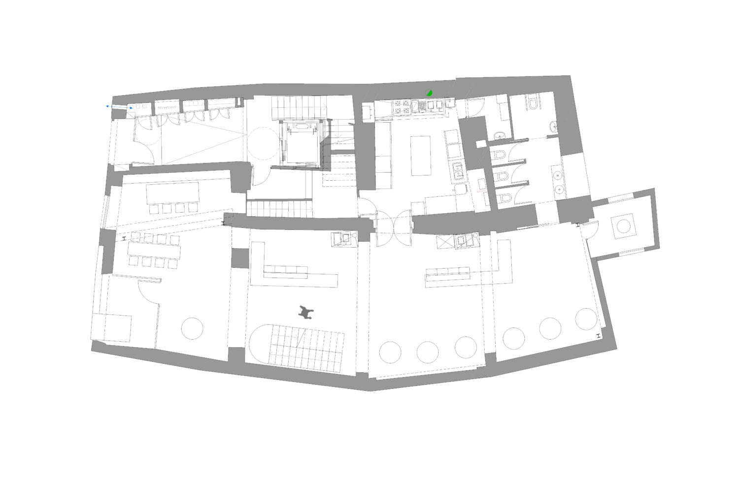
Es tracta de la rehabilitació integral de dos edificis residencials situats a la Plaça del Mercat de Cardona.

Les dues cases daten del segle XII-XX, estil d’arquitectura Gòtica Civil i estan catalogades com a BCIL. Els dos edificis formen part del conjunt d’habitatges que definiren entre els segles XII-XIV l’espai públic del Mercat, esdevinguda en el decurs de la baixa Edat Mitjana el centre per excelꞏlència de la Vila.

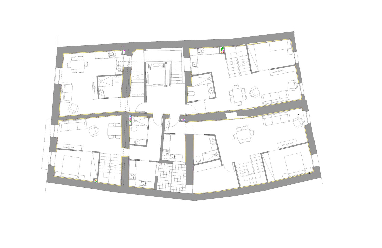
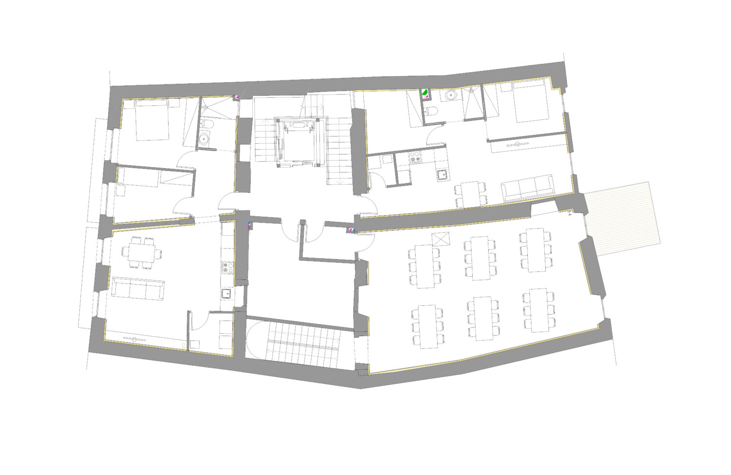
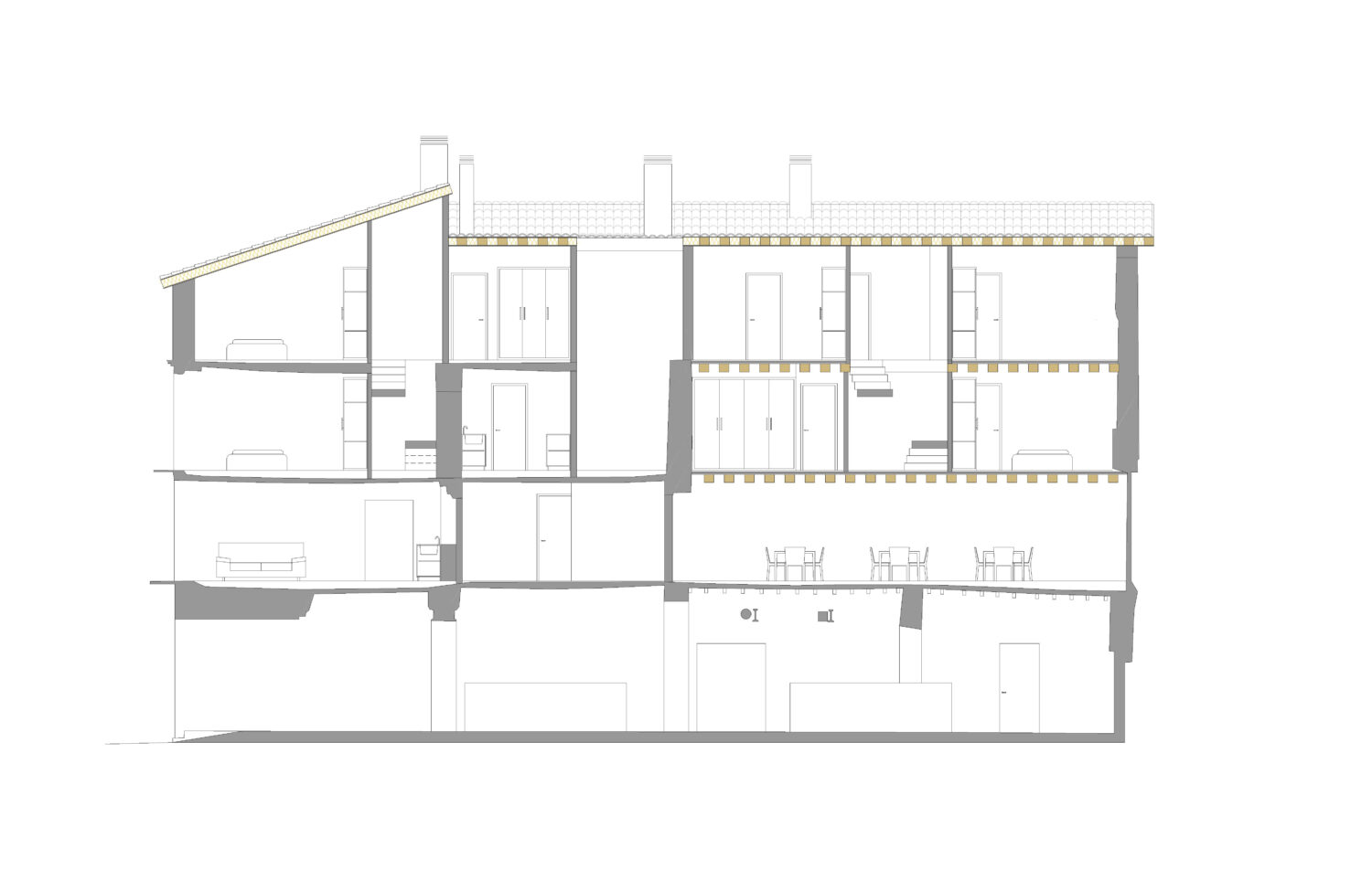
L’objectiu del projecte és adequar les plantes primera, segona i sotacoberta per habitatges de lloguer. Al tractar-se de finques de crugies estretes es proposa unificar les dues finques i així poder colꞏlocar un sol nucli de comunicacions verticals format per nova escala i ascensor adaptat.

Fitxa tècnica

Data del projecteDesembre 2022

Arquitecte/sPere Santamaria

Càlcul d'instal·lacionsSanti Marés

PromotorPrivat

Superfície1.165 m2

Pressupost431.424 €