22 HOUSING UNITS IN SANT FRUITÓS DE BAGES

Sant Fruitós de Bages

Project description

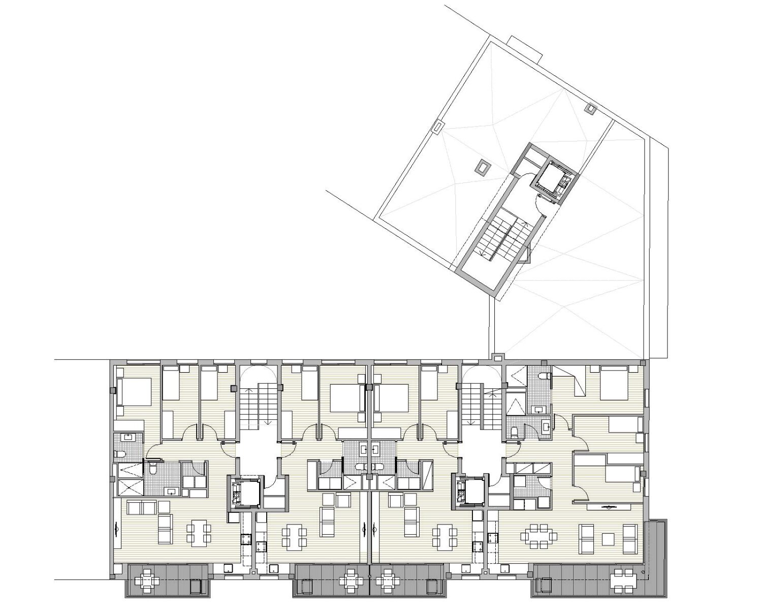
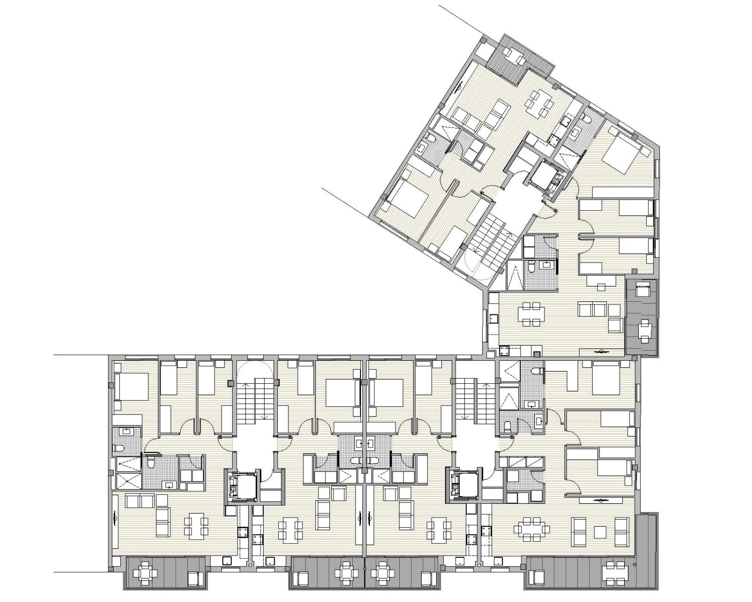
The project consists of constructing a new multi-family residential building between party walls on a corner, comprising a basement, ground floor, and three upper floors in the area facing Casajoana Street at the corner with Pesca Street, and a ground floor and two upper floors in the area of Pesca Street at the corner with Tomás Garrit Street.

The program includes 22 apartments with 2 and 3 bedrooms, 20 parking spaces, and 22 storage rooms.

The interior open space of the plot is designated as terraces for the use of the residents.

Data sheet

Project dateJune 2025

Architect/sPere Santamaria

PromoterCardoner Prom Sant Fruitós

Area2.002 m2