3 housing units in Camp d’Urgell street

Manresa

Project description

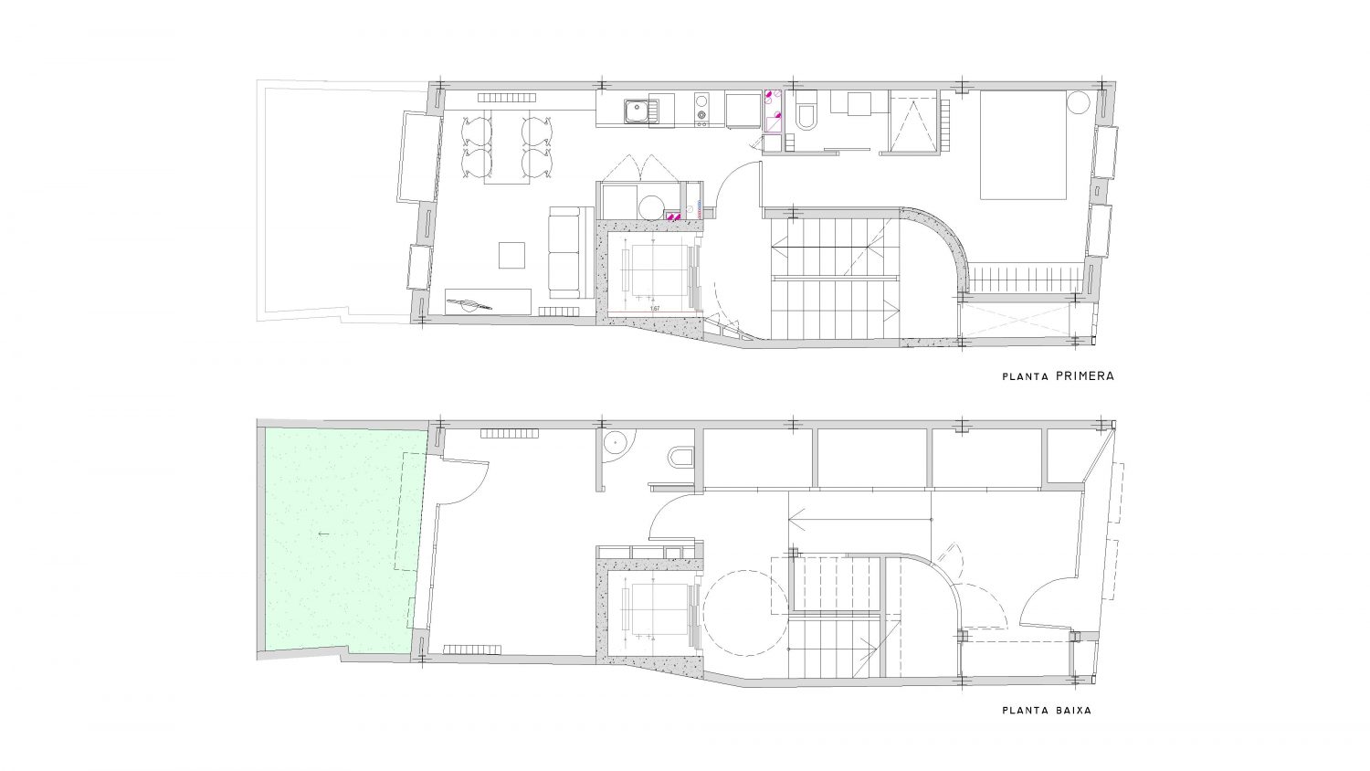
Attached multi-family housing, formed by ground floor and three upper floors.

Each floor has one housing with one room. The ground floor has also a room without specific use.

On the façade, vertical openings are arranged, according to municipal ordinances for buildings of the old town.

Data sheet

Project dateDecember 2009

Architect/sPere Santamaria

Technical architectJaume Arimany

Structure calculationJoan Ramon Blasco

PromoterPrivate

Area231 m2

BuilderConstruccions Serafí Font

PhotographyFrancesc Rubí