Enlargement of the cultural hall L’Escola

Rellinars

Project description

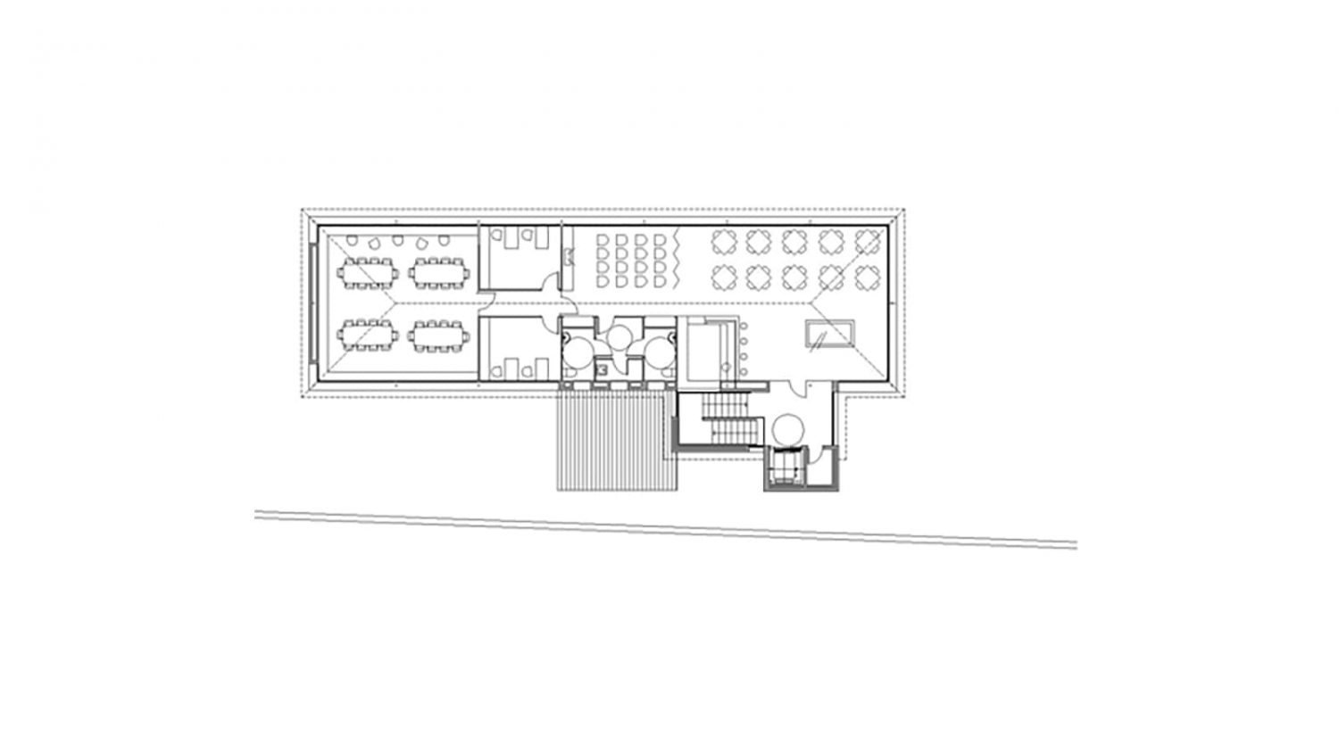
In an existing 2-storey building, the project proposal is the extension of the multipurpose room, keeping the same width of the current room and incorporating a visual and physical relationship with the exterior through windows that open to a landscaped space. The interior-exterior relationship is materialized with stands that look to the green space.

BIBLIOGRAPHY

See article

Data sheet

Project dateMay 2003

Architect/sPere Santamaria

PromoterAjuntament de Rellinars

Area257,35 m2

Budget331.855 €

BuilderPromocions Navàs