Arenys de Munt
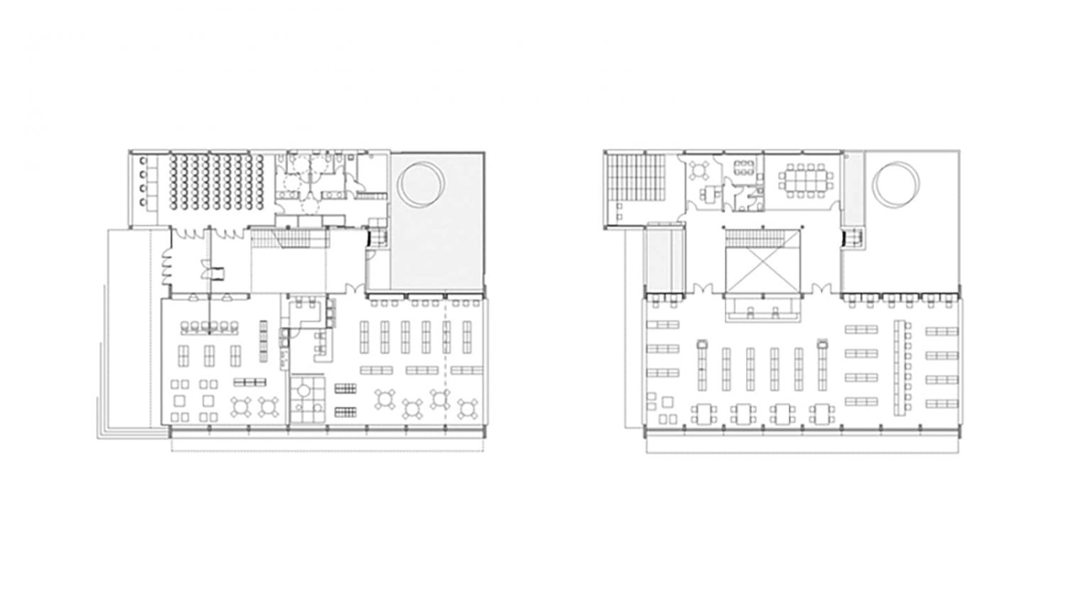
It is a compact, 2-storey building, located on the right side of La Rambla.
The building is structured by a perpendicular axis that passes through the entrance lobby and with visuals to an inner courtyard.
Project dateJune 2003
Architect/sPere Santamaria
PromoterDiputació de Barcelona
Area1.179,96 m2
Budget2.305.144 €