Masquefa
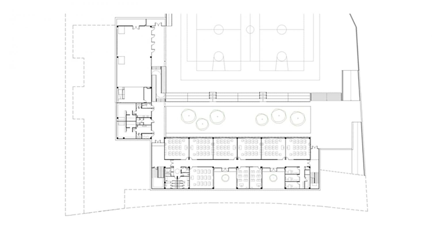
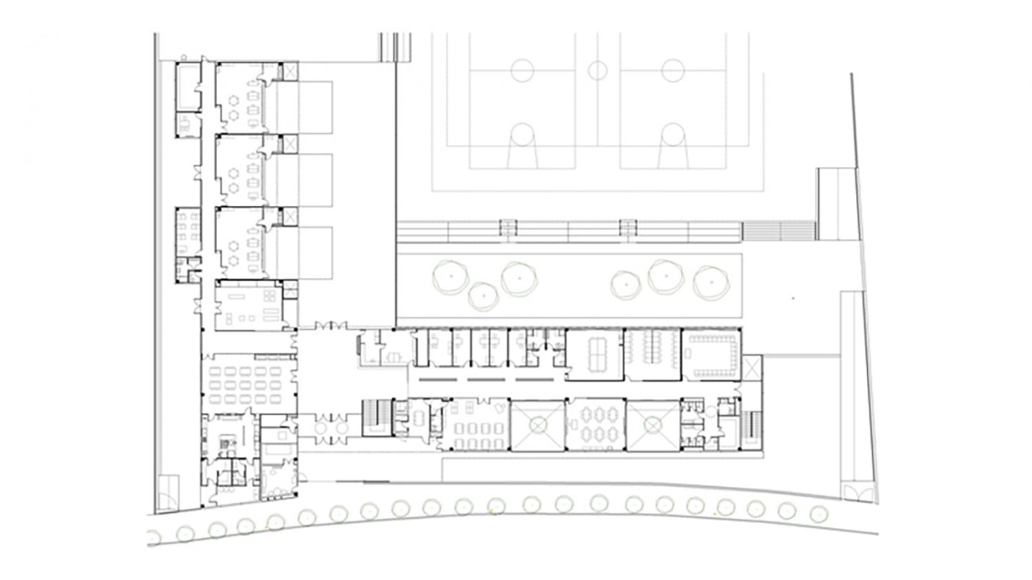
A building in the form of “L” is aligned to the street, and with the plot where the new institute is located.
The building is closed to the near views on the north and west facades, by creating retrenchment courtyards where the classrooms will be opened, and it opens onto the playground area and the views to the park.
Taking advantage of the strong slope of the ground, the building is developed on the ground floor, where the main access is located along the Xic de l’Anye street, and on the lower floor, where the playground and polideportive courts will be located.
Project dateDecember 2012
Architect/sPere Santamaria
Structure calculationManuel Arguijo y Associados S.L.
Services calculationJSS arquitectura i enginyeria SLP
PromoterGestió d'Infraestructures S.A. (GISA) / Departament d'Ensenyament de la Generalitat de Catalunya
Area2.550 m2
Budget3.739.017 €
BuilderConstructora de Calaf
Awards1st prize in restricted competition