Improvement in the 3rd floor of Arnau de Vilanova Hospital

Lleida

Project description

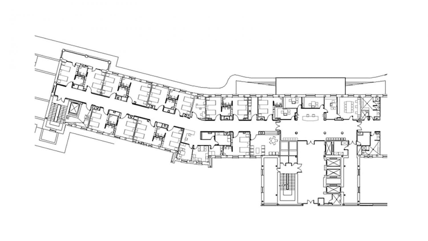
The aim of the project contemplates the improvement of the right wing and entrance hall of the third floor of the 3rd phase of the Hospital, in order to locate a Short Stay Unit of support to Emergencies for about 28 patients.

The program consists of double rooms, nursing and control area, reception hall, dispatches, staff room and waste warehouse.

Data sheet

Project dateJanuary 2004

Completion dateJanuary 2007

Architect/sPere Santamaria

Technical architectSantiago Llanas

Services calculationGarrós Taller d'Enginyeria

PromoterGestió d'Infraestructures S.A. (GISA) / Servei Català de la Salut

Area830,52 m2

Budget901.518 €

BuilderTecnocontrol