Remodeling and extension of fire station

Mollet del Vallès

Project description

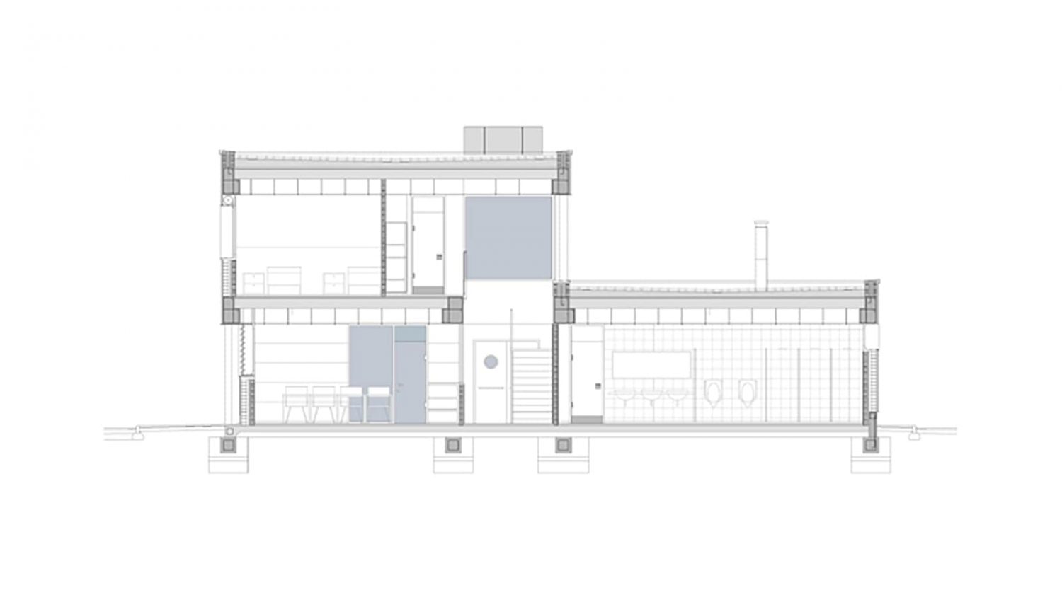
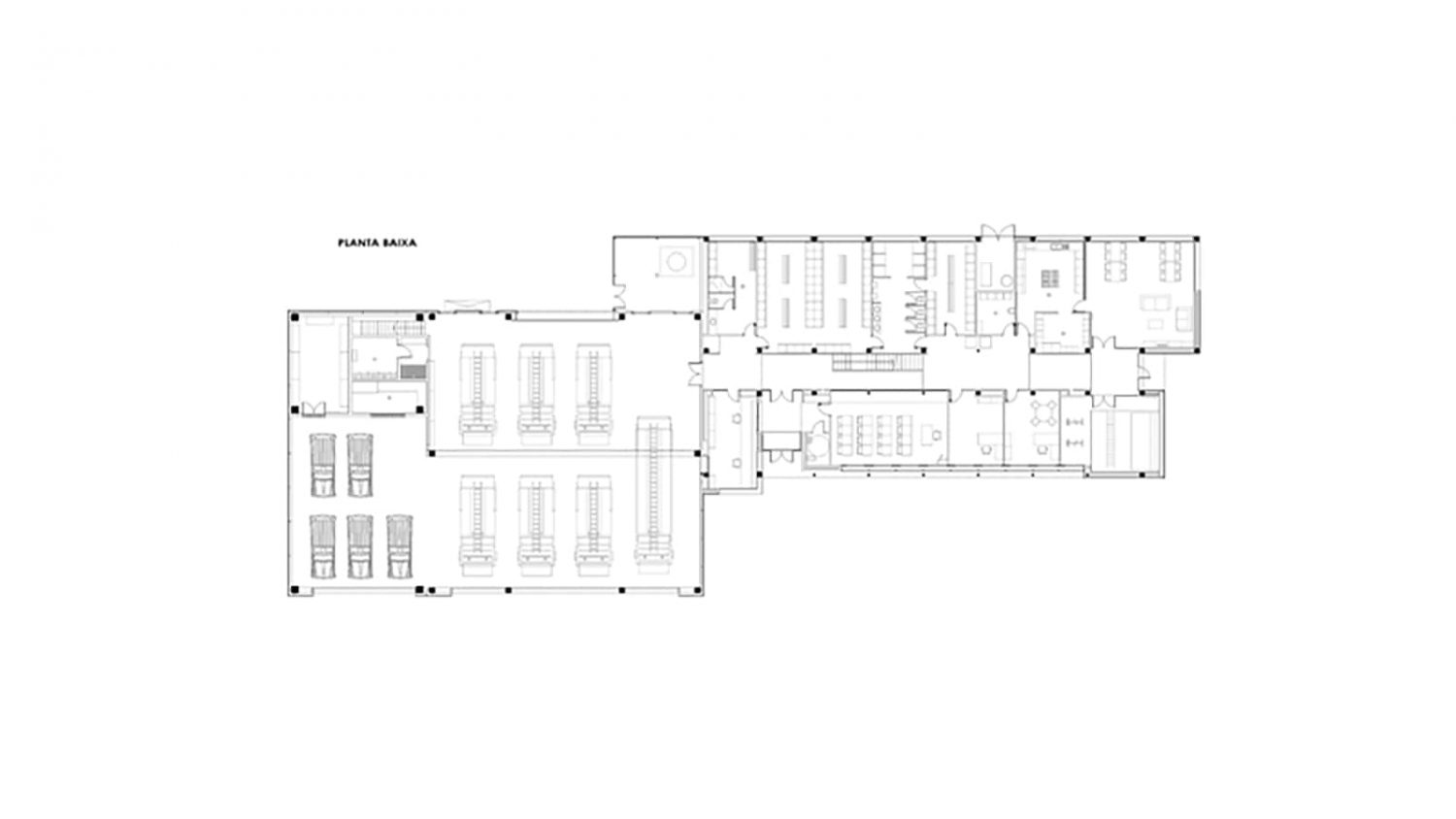
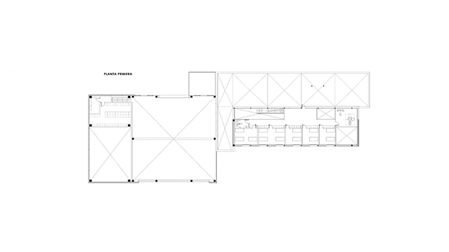
The object of the project is the expansion of the existing depot, and the construction of the new building for the other fire station sapces.

The building, two story height, is developed by a double height central corridor with program on each side.

On the first floor, only the east strip is built, ther ara the rooms and a block of services, facing the street, with east orientation.

The pre-existing prefabricated volume is maintained in the garages and an extension is added to the south façade with direct exit to the road.

Data sheet

Project dateApril 2006

Completion dateOctober 2009

Architect/sPere Santamaria

Technical architectJosep Maria Escuer

Structure calculationJoan Ramon Blasco

Services calculationJSS arquitectura i enginyeria SLP

PromoterGestió d'Infraestructures S.A. (GISA) / Departament d'Interior de la Generalitat de Catalunya

Area1.400 m2

Budget2.228.720 €

BuilderSerom

PhotographyFrancesc Rubí