Remodeling and extension of a single-family building between party walls

Manresa

Project description

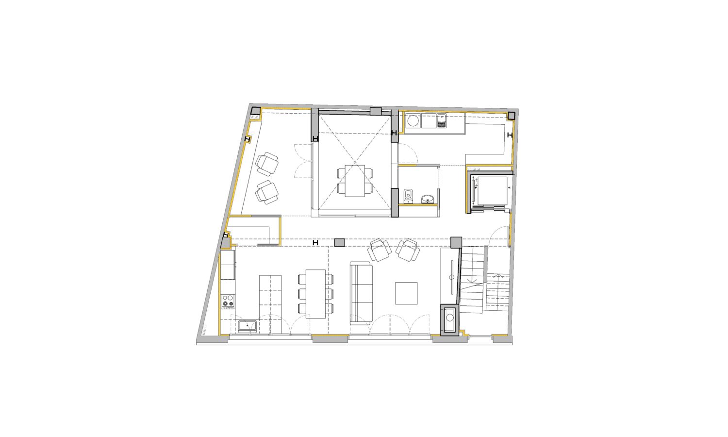
The project takes place in an existing building between party walls, consisting of a ground floor and a first floor, with parking and warehouse uses, in order to adapt it as a single-family home between party walls.

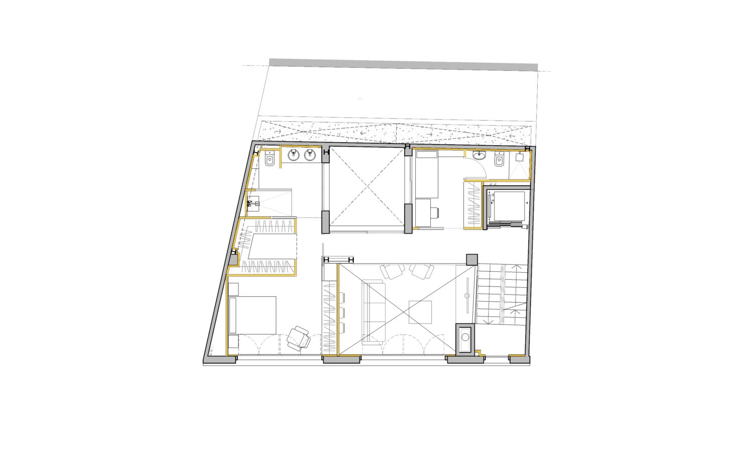
The project foresees the rise of two upper floors, so that the building becomes PB+3PP as allowed by the current planning.

In order for all the rooms to have natural light and ventilation, a 3×3 m patio is created attached to the rear partition. This patio allows at the same time to create visual relationships between the spaces and is an outdoor living space on the first floor level.

At the level of the facades, the same compositional system will be maintained as on the lower floors in order to integrate the rise with the original building.

Data sheet

Project dateMarch 2024

Architect/sPere Santamaria

PromoterPrivate

Area326,77 m2