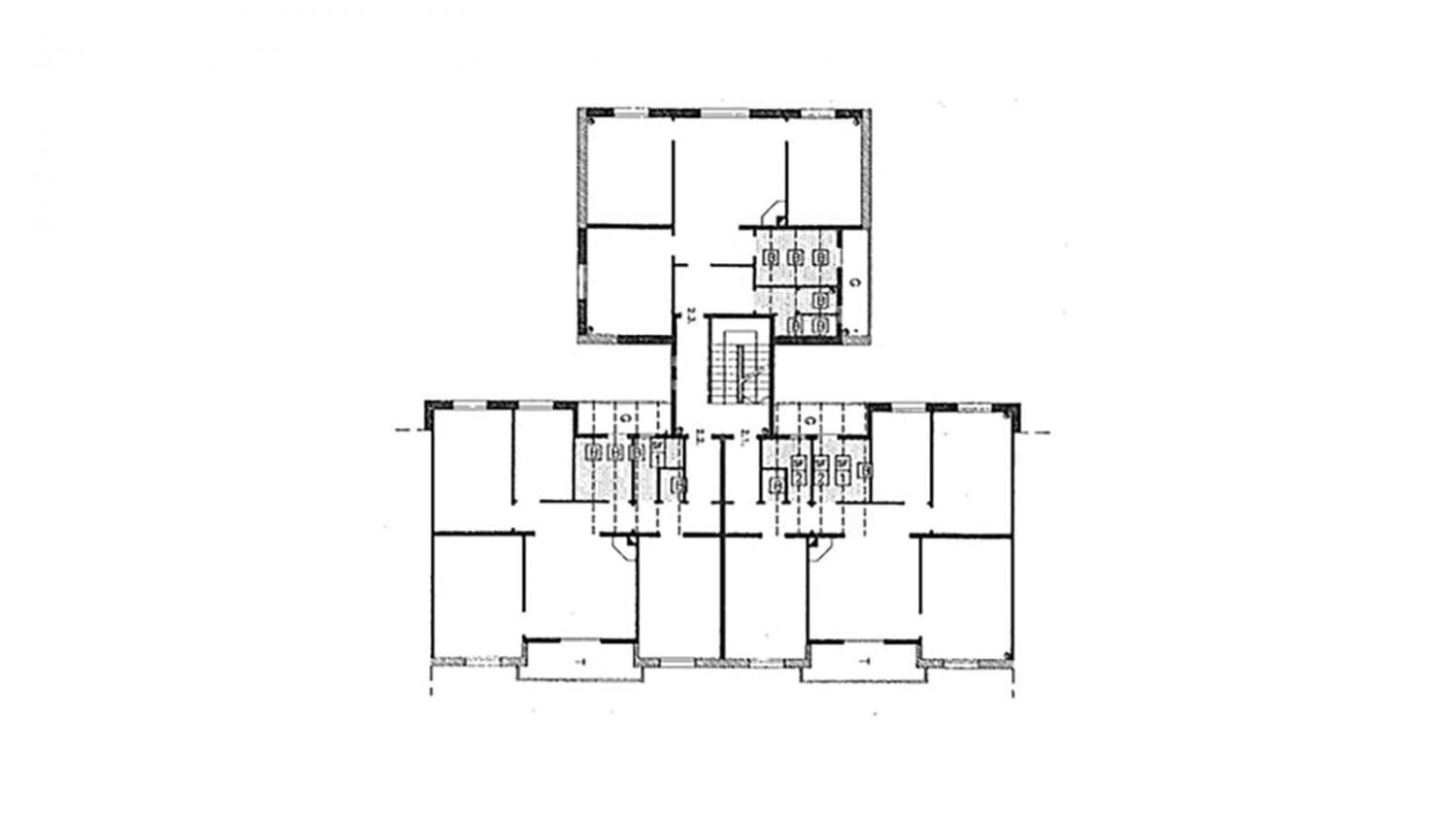
Restoration of 100 housing units

Manresa

Project description

Rehabilitation of 100 apartments, carrying out structural reinforcement, repair of roofs and facilities.

Data sheet

Project dateFebruary 1994

Completion dateSeptember 1996

Architect/sVíctor Seguí / Pere Santamaria

PromoterLa Caixa

Area18.300 m2

Budget1.202.024 €

BuilderConstructora del Cardoner