Manresa
It is the restoration of the Casa Alter and the construction of a multifamily building between dividing walls attached to the Casa Alter.
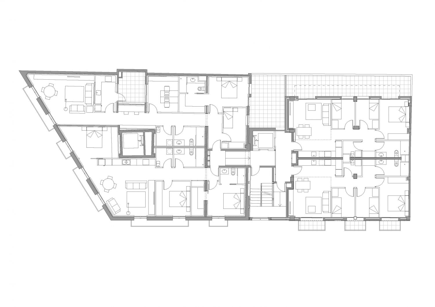
The two buildings will have a common staircase and elevator and a shared ground floor parking lot. In the Casa Alter, there are 8 flats with 3 rooms arranged between 4 floors, while in the new building there are 10 flats distributed among 5 floors. The attic floor is a construction that partially occupies a surface in the Casa Alter and the other on the new building.
The main access is carried out through Alcalde Armengou Street as well as the access to the parking lot.
BIBLIOGRAPHY
Project dateNovember 2018
Completion date2018
Architect/sPere Santamaria
Technical architectJaume Garcia
Structure calculationOriol Palou
Services calculationLarix
PromoterPrivate
Area2.553,04 m2
Budget1.343.567 €
BuilderConstructora del Cardoner
PhotographyTanit Plana
AwardsSelected work 8th Biennial of Architecture of the Central Regions 2021