Assisted-living apartments for the elderly and entities hotel

Manresa

Project description

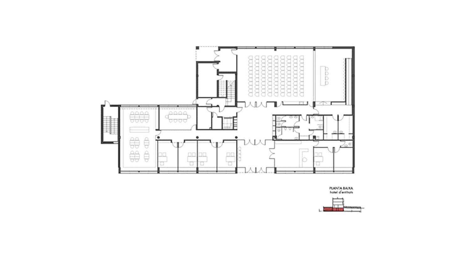
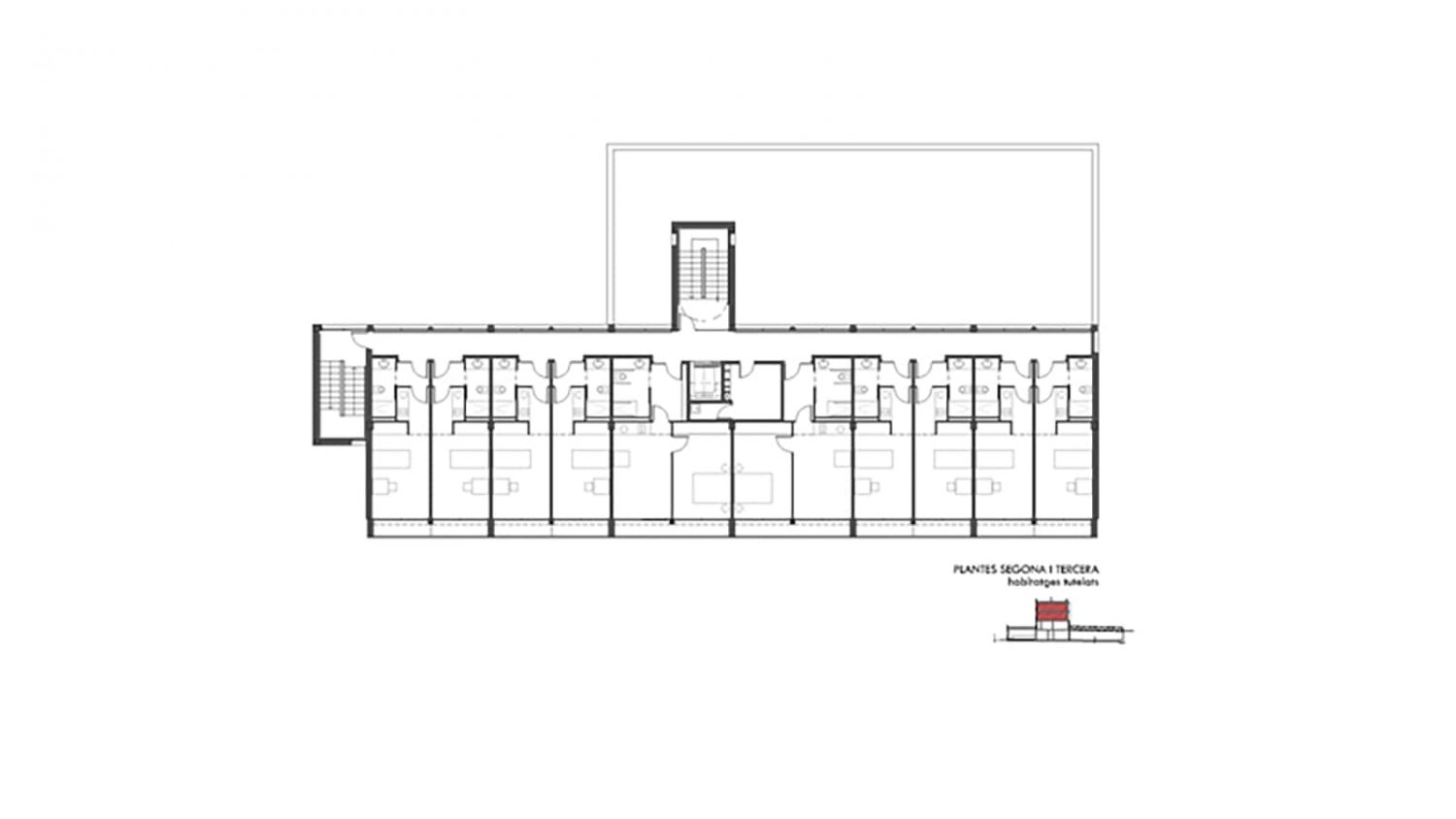
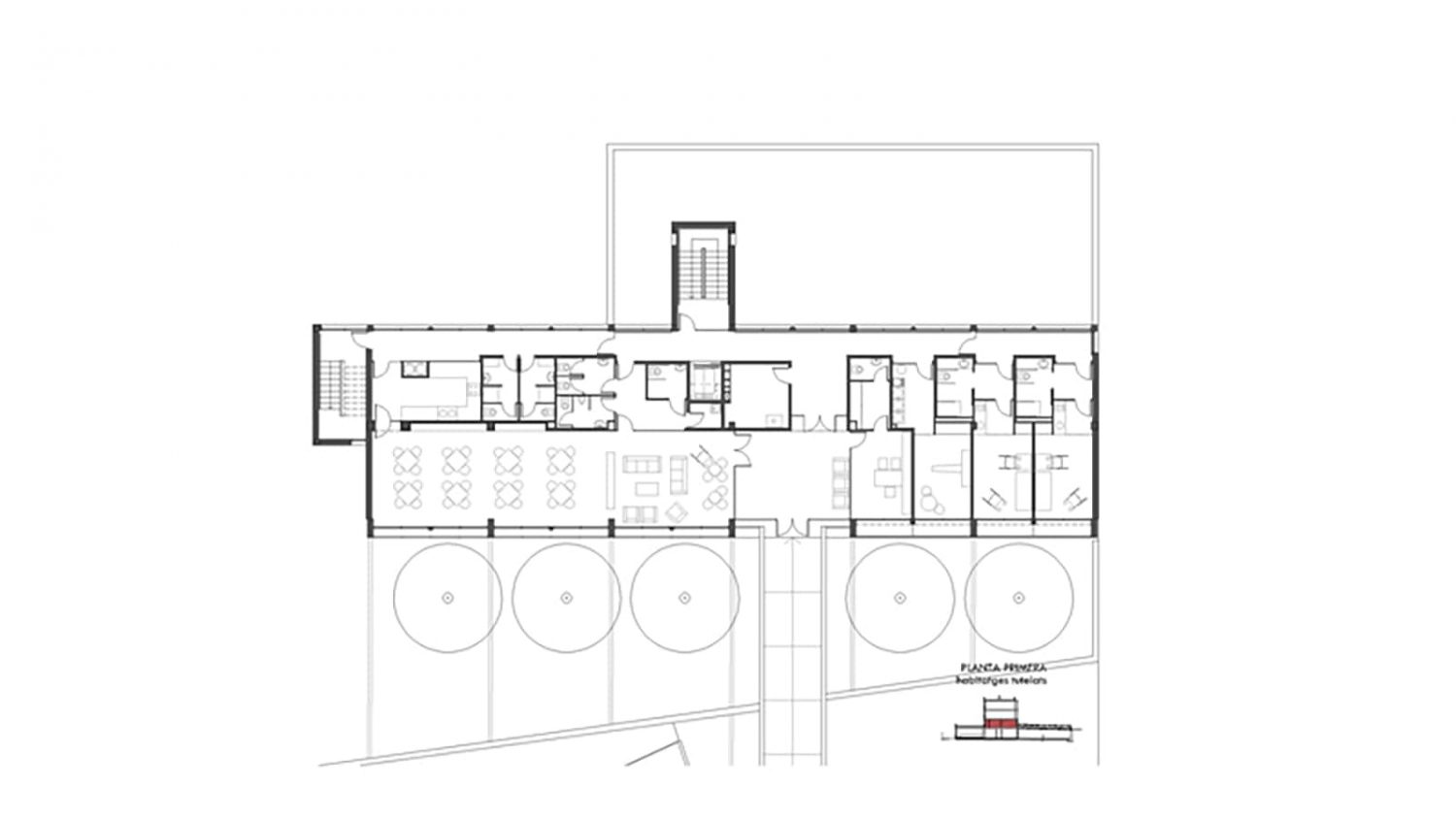
Part of the building is destined for assisted-living apartments by the elderly, and a part of program that works as a hotel of entities for the neighborhood.

It is a rectangular volume of ground floor and three floors located at the northern end of the Democracia Square, practically at the natural level of the land.

BIBLIOGRAPHY

See article

See article

Veure article

Data sheet

Project dateJuly 2002

Completion dateJune 2004

Architect/sPere Santamaria

Technical architectJosep Maria Corominas (SUMMA)

Structure calculationJoan Ramon Blasco

Services calculationGarrós Taller d'Enginyeria

PromoterGISA - Departament Benestar Social i Família

Area1.968 m2

Budget1.827.987 €

BuilderConstruccions Cots i Claret, S.L.

PhotographyFrancesc Rubí

AwardsSelected 4th BACC 2006