Sant Feliu de Llobregat
The project has as its objective the full renovation of an existing library to operate more effectively, on both a functional and constructive level.
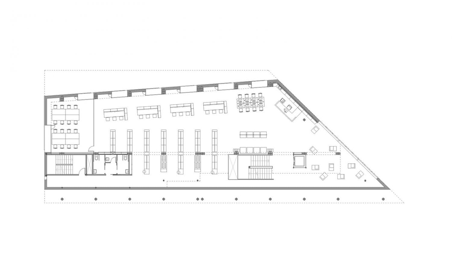
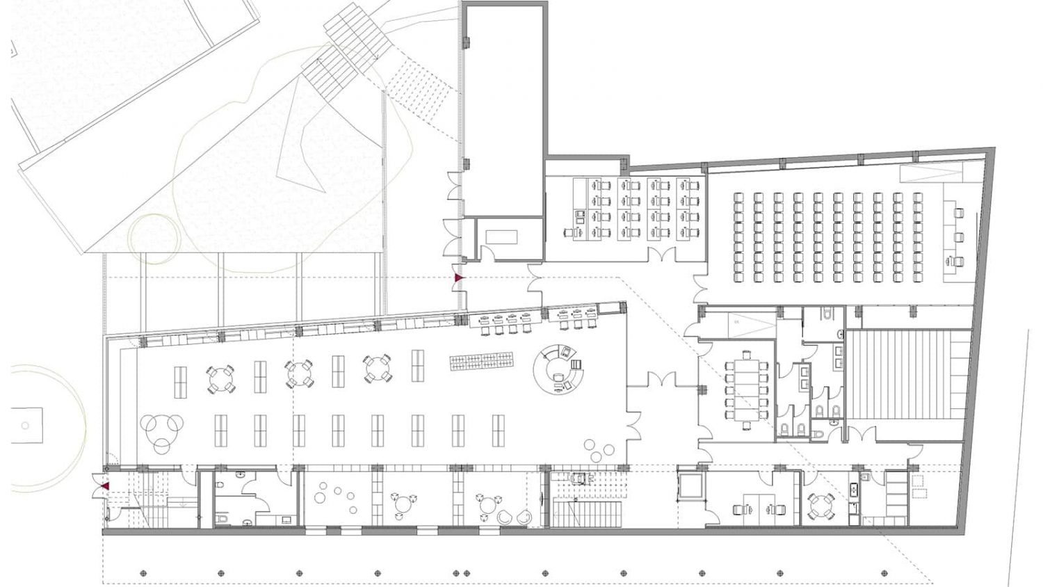
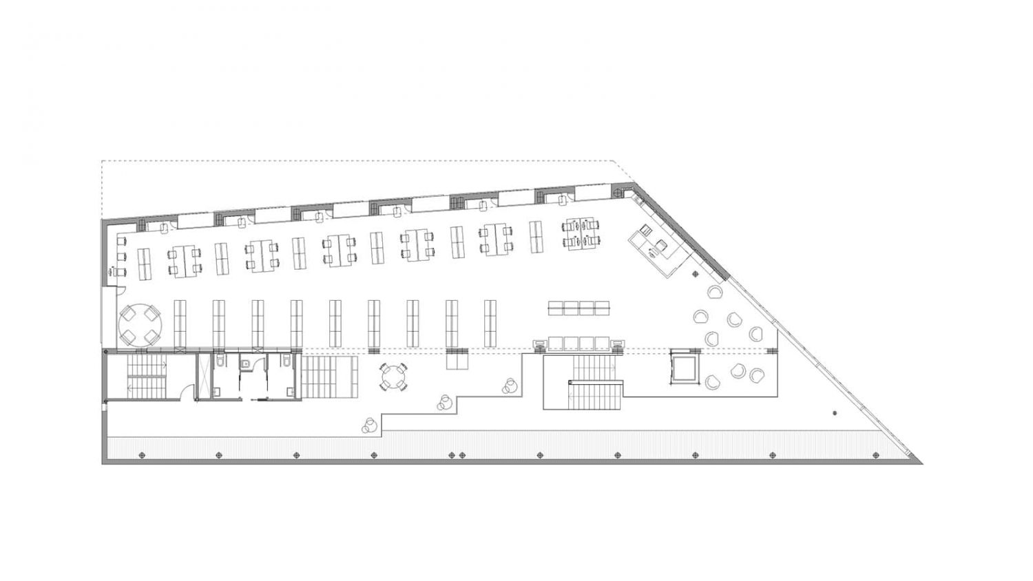
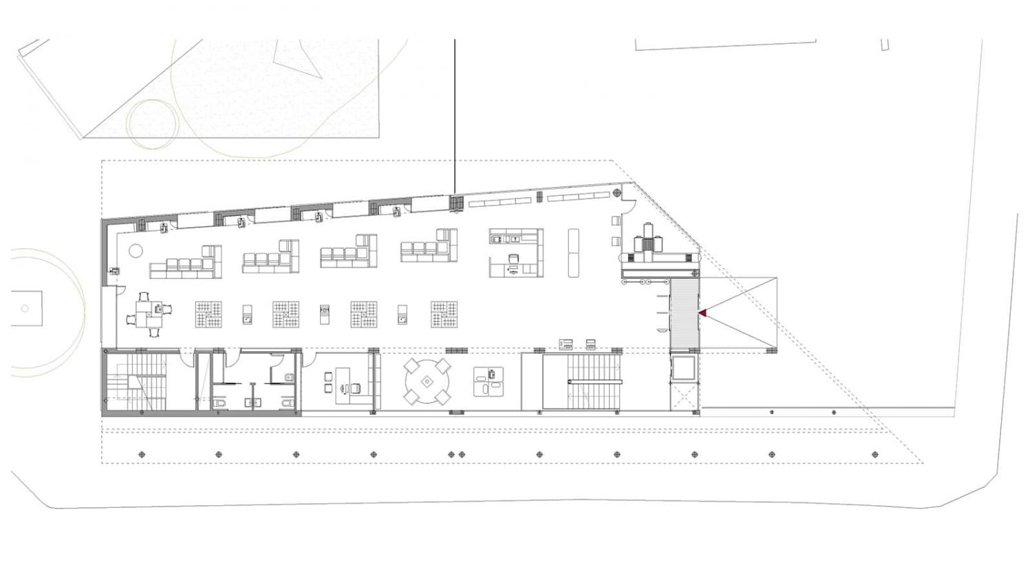
The main spaces of the library take up the 4 floors and open tothe park ofJardins de la Torre del Roser.
A new staircase and an accessible lift are built, located in a longitudinal plane on the northeast façade that also includes the core services.

BIBLIOGRAPHY
Project dateJanuary 2014
Completion dateJune 2017
Architect/sPere Santamaria
Technical architectAntoni Elvira
Structure calculationManuel Arguijo y Asociados S.L.
Services calculationJSS arquitectura i enginyeria SLP
PromoterDiputació de Barcelona / Sant Feliu de Llobregat City Council
Area2.369 m2
Budget2.531.000 €
BuilderTOOP
PhotographyFrancesc Rubí
Awards1st prize in open competition